上海世貿商城展會統計分析
正在加載“展館辦展數量按周統計”統計圖
x軸:周次(比如2月1日大概是本年的第五周);
y軸:場*天(比如在某個展館某個周有兩場展會,一個開展日期是3天,一個開展日期是4天,本周的場*天就是7);
正在加載“展館使用占空比”統計圖
x軸:周次(比如2月1日大概是本年的第五周);
y軸:占空比:指某場館某個星期所有出租面積*天數/所有室內面積*7天,此指標能大致反映出該場館的面積占用情況
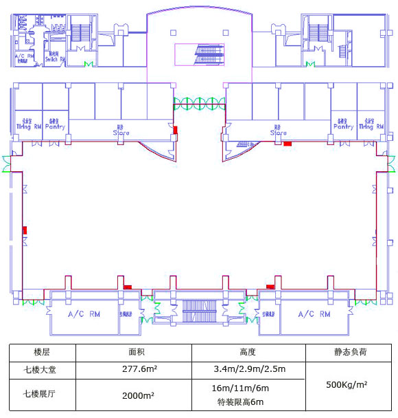
展館外觀圖
更多>>展館場館圖
更多>>周邊酒店住宿服務
更多>>- 很近上海愛家招待所
- 很近上海福泰國際商務酒店
- 很近上海漢庭快捷酒店(世貿商城店)
- 很近上海虹橋全季酒店
- 適中上海虹橋賓館
- 適中上海揚子江萬麗大酒店
- 適中上海紅典花園會館
- 適中上海領尚國際酒店








